Ferienwohnungen - Kaiser
© fewo-kaiser-hoechenschwand 2026

Ferienwohnung

Moorblick

1 Wohnzimmer / 1 Schlafzimmer

Belegung mit 1 - 2 Personen

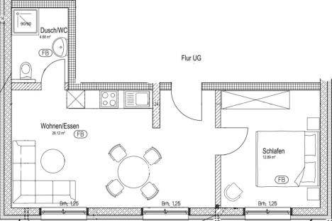
Unsere 2018 neu erbaute, grosszügige, helle und moderne Ferienwohnung mit 43,6 m² befindet sich im Souterrain. Die Einbauküche ist mit Backofen, Spülmaschine, Kühlschrank mit Gefrierfach und einem Kochfeld ausgestattet. Die Essecke besitzt einen grosszügigen Tisch, an dem 2 Personen bequem Platz finden Im Wohnbereich finden Sie eine gemütliche Eckcouch mit Tisch. Flachbildfernseher, Telefon und Stereoanlage mit CD sind für Sie vorhanden. Die geräumige Dusche ist mit einer Duschkabine, einem Waschtisch mit Spiegel, einem Handtuchheizkörper und einem WC ausgestattet. Die gesamte Wohnung ist mit einer Fussbodenheizung ausgestattet, in jedem Raum kann die Temperatur separat nach Ihren Bedürfnissen eingestellt werden. Vor der Wohnung befindet sich ein über den Hauseingang zugänglicher Freisitz, der von Ihnen genutzt werden kann Vor dem Haus befindet sich noch ein Autoabstellplatz.

Ausstattung

allergikerfreundlich, Nichtraucher, Safe, Telefon, Trockner, Waschmaschine, WLAN, Zentralheizung Bettwäsche vorhanden und Betten bezogen, Handtücher vorhanden, Bademäntel vorhanden Backofen, Kühlschrank, Wohnküche Couchecke, Essgelegenheit Babybett (auf Anfrage) Dusche, WC, Waschbecken Stereoanlage mit CD, Fernseher, Sat-TV, Spielesammlung Tiere nicht erlaubt

Diverses (Stand 2025)

Kurtaxe: 0,00 EUR pro Person / Nacht (0-5 Jahre) 1,30 EUR pro Person / Nacht (6-15 Jahre) 3,00 EUR pro Person / Nacht (ab 16 Jahre) Anreise: ab 17:00 Uhr oder nach Absprache Abreise: bis 10:00 Uhr
Hier online buchen  Hier online buchen 

Grundriss:

Ferienwohnungen - Kaiser
© fewo-kaiser-hoechenschwand 2026

Ferienwohnung

Moorblick

1 Wohnzimmer / 1 Schlafzimmer

Belegung mit 1 - 2 Personen

Unsere 2018 neu erbaute, grosszügige, helle und moderne Ferienwohnung mit 43,6 m² befindet sich im Souterrain. Die Einbauküche ist mit Backofen, Spülmaschine, Kühlschrank mit Gefrierfach und einem Kochfeld ausgestattet. Die Essecke besitzt einen grosszügigen Tisch, an dem 2 Personen bequem Platz finden Im Wohnbereich finden Sie eine gemütliche Eckcouch mit Tisch. Flachbildfernseher, Telefon und Stereoanlage mit CD sind für Sie vorhanden. Die geräumige Dusche ist mit einer Duschkabine, einem Waschtisch mit Spiegel, einem Handtuchheizkörper und einem WC ausgestattet. Die gesamte Wohnung ist mit einer Fussbodenheizung ausgestattet, in jedem Raum kann die Temperatur separat nach Ihren Bedürfnissen eingestellt werden. Vor der Wohnung befindet sich ein über den Hauseingang zugänglicher Freisitz, der von Ihnen genutzt werden kann Vor dem Haus befindet sich noch ein Autoabstellplatz.

Ausstattung

allergikerfreundlich, Nichtraucher, Safe, Telefon, Trockner, Waschmaschine, WLAN, Zentralheizung Bettwäsche vorhanden und Betten bezogen, Handtücher vorhanden, Bademäntel vorhanden Backofen, Kühlschrank, Wohnküche Couchecke, Essgelegenheit Babybett (auf Anfrage) Dusche, WC, Waschbecken Stereoanlage mit CD, Fernseher, Sat-TV, Spielesammlung Tiere nicht erlaubt

Diverses (Stand 2025)

Kurtaxe: 0,00 EUR pro Person / Nacht (0-5 Jahre) 1,30 EUR pro Person / Nacht (6-15 Jahre) 3,00 EUR pro Person / Nacht (ab 16 Jahre) Anreise: ab 17:00 Uhr oder nach Absprache Abreise: bis 10:00 Uhr
Hier online buchen  Hier online buchen 

Grundriss:

Bildergalerie: